Villa indipendente ristrutturata a nuovo

In vendita
Villa
Padenghe sul Garda
1.650.000 €
Descrizione
Villa esclusiva con vista lago a Padenghe sul Garda – Un'opportunità unica!
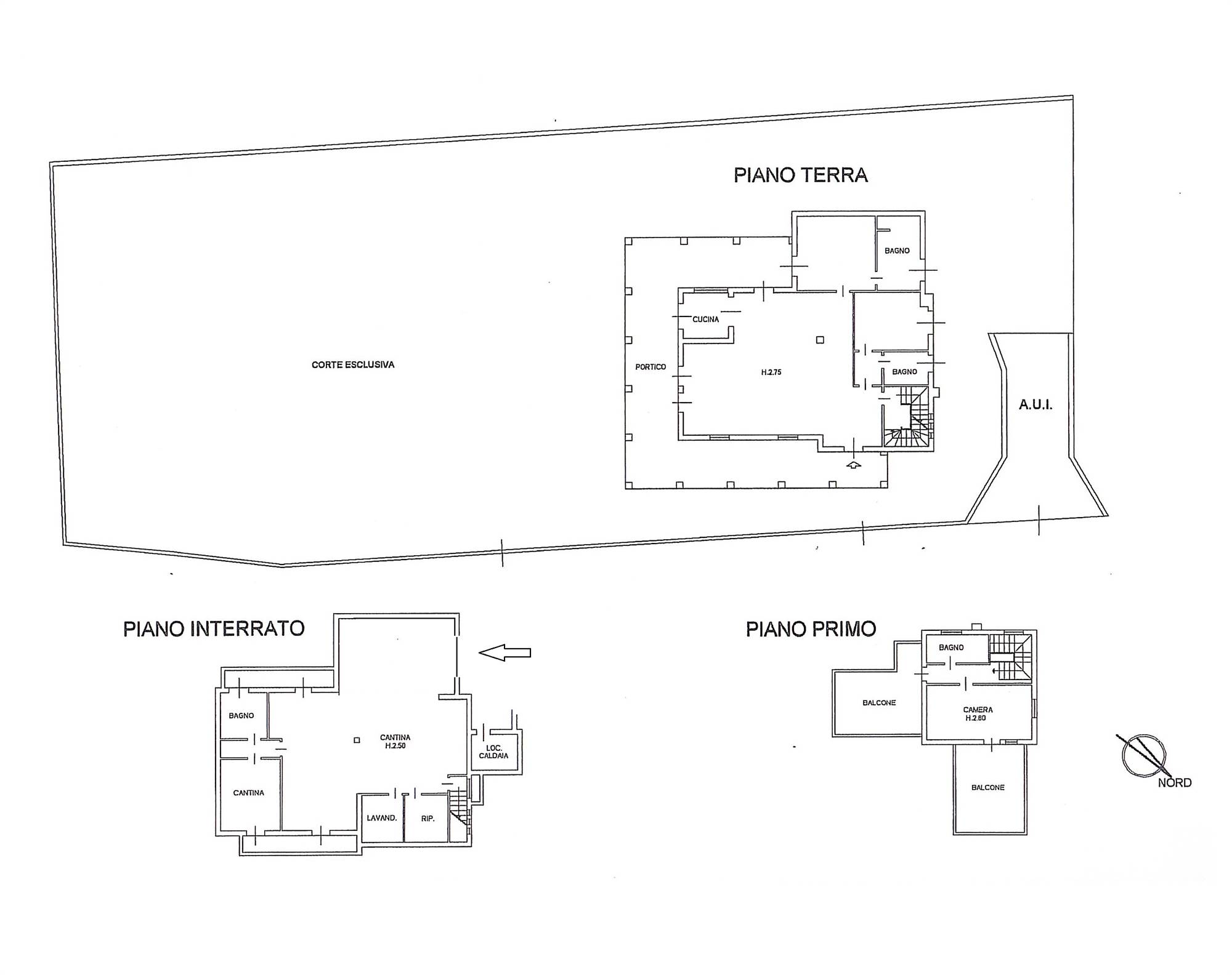
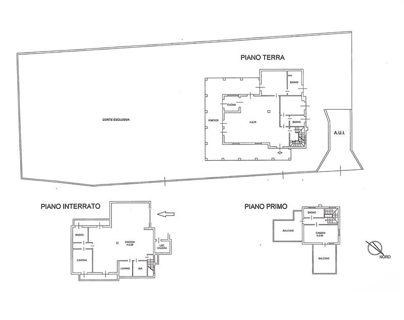
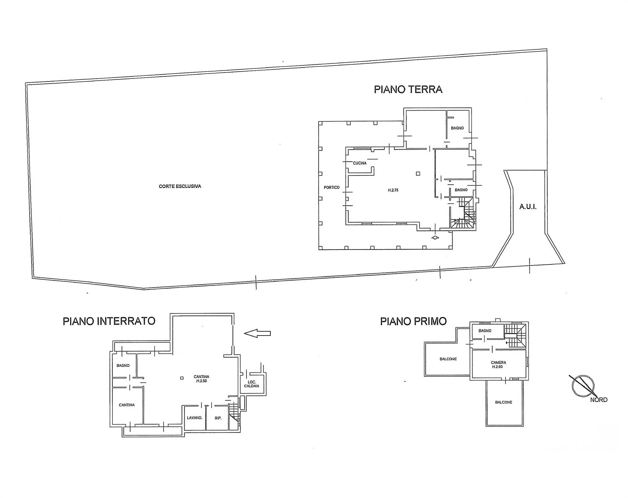
Siete alla ricerca di una villa spaziosa e libera su 4 lati, immersa in una zona residenziale di prestigio, con vista sul lago di Garda e a pochi passi dal lago stesso? Questa villa, con una superficie di circa 2.770 mq di area, di cui 1.600 mq di giardino privato, è l'opportunità che stavate cercando!
Villa del fine anni ’90 (ad oggi non ancora ristrutturata) IL PREZZO ESPRESSO È COMPLETAMENTE RISTRUTTURATA CHIAVI IN MANO, Lo stile è indicativamente come da immagini . Ristrutturata con queste caratteristiche : Impianto elettrico completamente nuovo, : Impianto idraulico e termico completamente nuovo, serramenti e scuri esterni e porte interne nuove, bagni tutti nuovi compresi impianti, tetto e terrazze rifatte con relativo isolamento termico, cappotto termico esterno, fotovoltaico da 6 Kw, piscina interrata da 4 x 8, giardino a nuovo siepi ed irrigazione, per maggiori informazioni necessita un incontro, rifacimento totale di tutta la parte interrata (taverna e garage)
È possibile anche modificare il progetto per fare una terza camera al piano terra, portando così il totale a 4 camere, otre l’innumerevole spazio nell’interrato.
Caratteristiche principali:
• Due livelli abitativi per un totale di ampi spazi interni ed esterni.
• Grande soggiorno con cucina separata, camere da letto ampie e comode, bagno privato nella camera matrimoniale.
• Zona giorno e zona notte disposte in modo funzionale e con possibilità di personalizzazione.
• Terrazza con vista sul lago, perfetta per godersi i panorami mozzafiato.
• Piano interrato con taverna, lavanderia, ripostiglio e triplo posto auto coperto.
La villa ad oggi è certificata con classe energetica F (IPE 231,11 kwh/m2), ma con la ristrutturazione sarà possibile migliorare significativamente la sua efficienza energetica ma sicuramente raggiungerà la classe energetica A.
Non perdere questa opportunità unica di acquistare una villa dal grande potenziale, in una delle zone più ricercate del lago di Garda.
Contattaci senza impegno per maggiori informazioni o per prenotare una visita. Collaboriamo con tutte le agenzie!
Un investimento nel futuro e nella qualità della vita.
SI COLLABORA CON TUTTE LE AGENZIE Potete contattarci senza impegno per ottenere maggiori informazioni o per prenotare una visione per questa villa in vendita a Padenghe sul Garda.
Caratteristiche principali
Codice:
Villa Padenghe_nuova
Città:
Padenghe sul Garda
Categoria:
Villa
Locali:
4
Camere:
3
Bagni:
3
Mq:
395
Box:
1
Mq Box:
32
Mq Giardino:
1600
Piano:
Terra
Anno:
2025
Classe energetica:
B
115 kWh/m²a
Stato Immobile:
Ristrutturato
Grado:
Signorile
Posizione:
Centro
Panorama:
Vista Lago
Lati Liberi:
4
Giardino:
Privato
Tipo Soggiorno:
Soggiorno
Tipo Cucina:
Cucinotto
Riscaldamento:
Autonomo
Tipo Riscaldam.:
Caldaia
Tipo Impianto:
Radiatori
Fonte Energetica:
Metano
Acqua Calda:
Autonoma
Raffrescamento:
No
Infissi:
Legno Doppio Vetro
Serramenti:
Discreto
Persiana:
Persiana Legno
Pavim. Giorno:
Gres Porcellanato
Pavim. Notte:
Gres Porcellanato
Pavim. Cucina:
Ceramica
Pavim. Bagno:
Ceramica
Accesso Disabili:
Nessuna Barriera
Accessori
Camino
Canna Fumaria
Doppi Vetri
Lavanderia
Passaggio Automobilistico
Mappa
Via A. Meucci, 20 - Padenghe sul Garda (BS)
Cookie preference